Accessibilités et accommodements
Le Réseau des femmes en environnement souhaite que ses activités en personne soient accessibles.
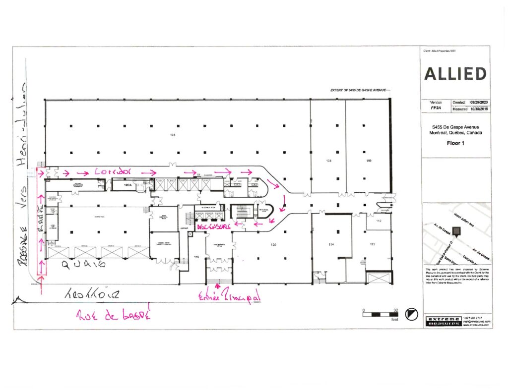
Nos bureaux sont situés à la Maison de la santé durable, au 5455 avenue de Gaspé, à Tioktià:ke (Montréal).
Le bâtiment dispose d’une rampe d’accès située au rez‑de‑chaussée, sur la façade nord du bâtiment (à gauche de l’entrée principale), face au boisé du Champs des possibles. Un corridor mène aux ascenseurs, qui permettent d’accéder aux bureaux situés au deuxième étage.
Plan de l’accès par le rez-de-chaussée :

Plan de l’accès par le stationnement souterrain :

Des toilettes adaptées aux personnes à mobilité réduite se trouvent au rez-de-chaussée et à chaque étage.
Un réseau Wi-fi est disponible, le code d’accès est affiché.
En cas de besoin des espaces calmes sont disponibles, avec différents types d’assises.
Le bureau du personnel de sécurité qui est présent en tout temps dans le bâtiment, est situé au rez‑de‑chaussée, entre le 5455 et le 5445 avenue de Gaspé.